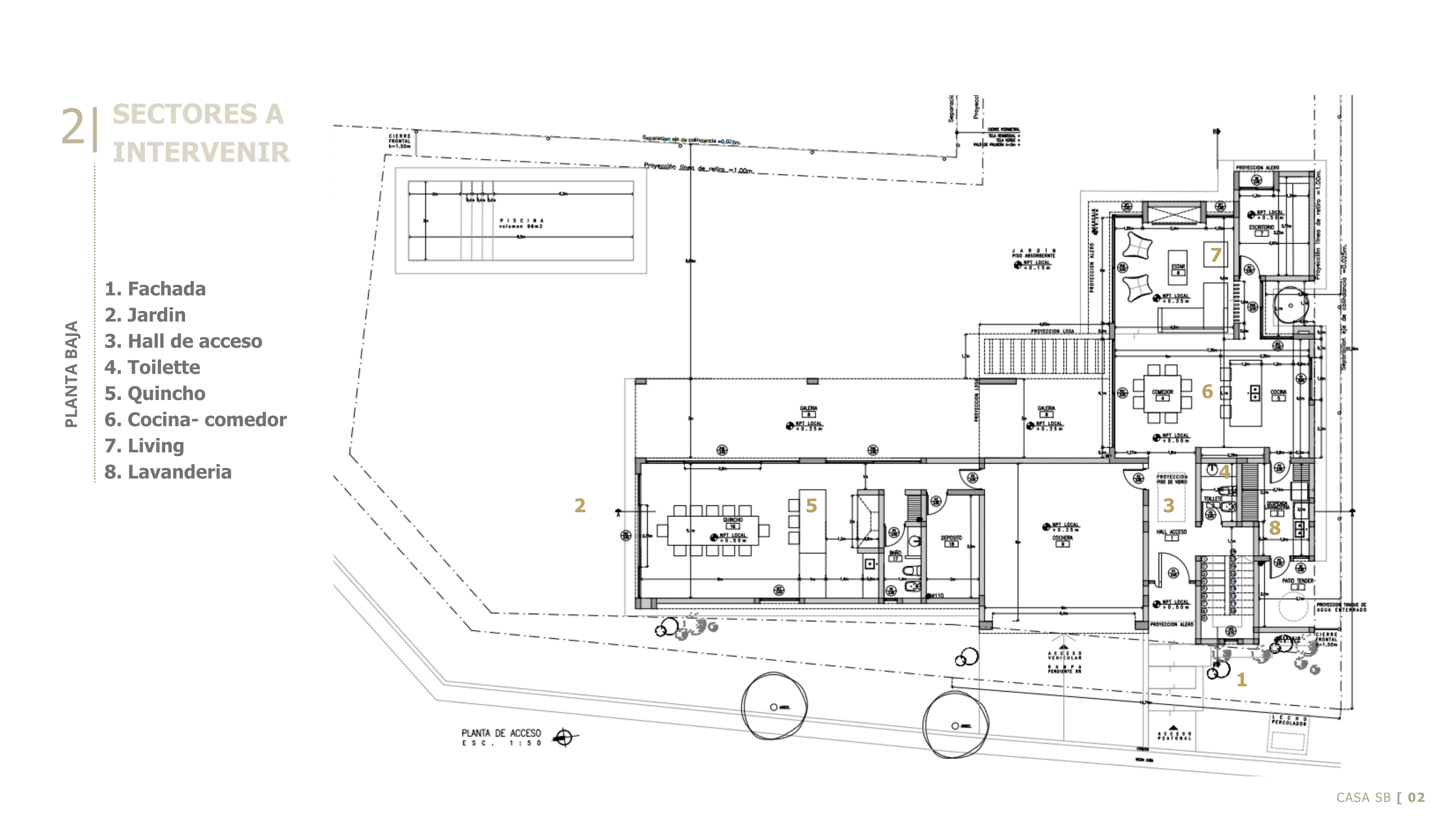
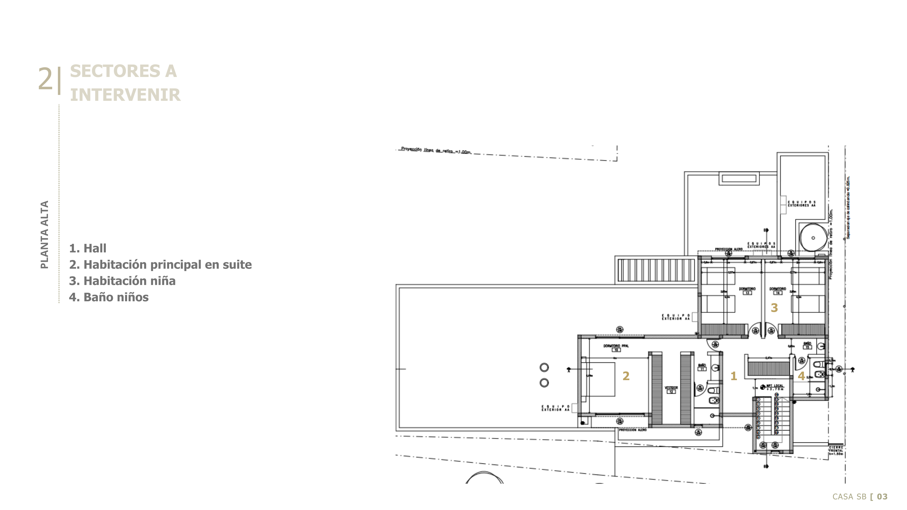
VIVIENDA SB
Diseño de Interiores - Diseño de muebles- Asesoramiento detalles exteriores
Vivienda ubicada en Barrio Las Carmelinas, San Martin, Mendoza.
Colaboracion: Arq. Agustina Esteves Superficie: 385m2 | Año: 2022